Berekening van een metalen ladder op bowstrings





Gegevensinvoer
Rekenmethode
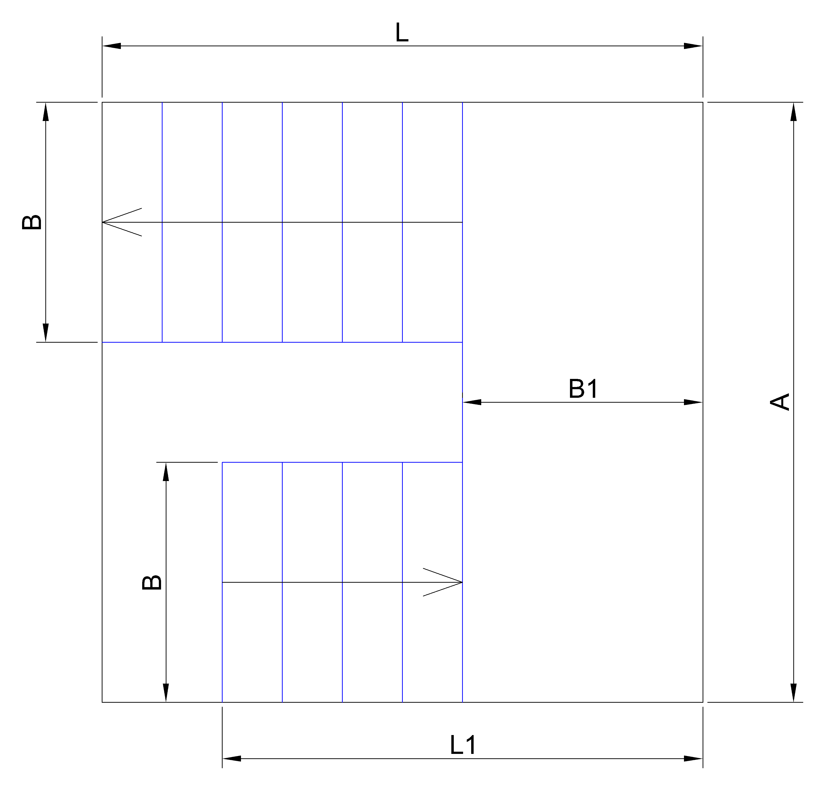
Opening lengte L

mm
Afstand L1 (niet meer)

mm
Hoogte H

mm
Stap breedte B

mm
Platformbreedte B1

mm
Breedte A

mm

trapgedeelte
trappenplan
Stap lengte b

mm
Stap hoogte h

mm
Kantelhoek van de trap

graden

Naam Waarde
1 Stap hoogte
2 Stap lengte
3 Aantal liften in de 1e trede
4 Aantal stappen in de 1e stap
5 Aantal liften in de 2e trede
6 Aantal stappen in 2e stap
7 Totaal aantal liften
8 Kantelhoek van de trap

Voorbeeld
Bouw
Sectie platforms
Bowstring profiel hoogte

mm
Bowstring profiel breedte

mm
Stap dikte

mm
Afstand m / tot de trap vanaf de muren

mm
Detailtekening



Als je een metalen ladder gaat maken op bowstrings met een platform, maar je bent geen ontwerper om de vereiste hoek, staphoogte of paslengte te berekenen – deze calculator zal je ideaal helpen.

De rekenmachine heeft 5 rekenmethoden, hij kan alles zelf berekenen, het enige wat je hoeft te doen is zorgvuldig alle afmetingen in te voeren.

Operatie procedure:
1.) Selecteer een berekeningsmethode (5 opties)
een. Kies de hoogte en lengte van de trede
b. Vind de hoogte, wetende de lengte van de trede
c. Kies de lengte en ken de hoogte van de trede
d. Stel de hellingshoek van de trap in (de hoogte en lengte van de trede worden geselecteerd door de hellingshoek, op basis van de gemakformule)
e. Stel de lengte en hoogte van de trede in (in deze variant zijn fouten mogelijk door de stevige binding aan de lengte en hoogte van de trede)
2.) Stel de vereiste geometrische afmetingen in (voor het gemak, vink de selectievakjes ‘Show section’ of ‘Show plan’ aan)
een. Hoogte H – de hoogte vanaf de afgewerkte vloer van de eerste verdieping tot de afgewerkte vloer van de tweede verdieping
b. Afstand L1 – de afstand waarbuiten de trap niet mag gaan
c. Breedte B – de breedte van de mars langs de buitenranden van het boogpeesprofiel
3.) Druk op de knop “Berekening”

Het resultaat is een tabel met de berekende trapwaarden (tredehoogte, tredelengte, aantal treden op 1 stap, het aantal treden op 2 stap, het aantal treden in totaal, de hellingshoek van de trap in graden).

Er zal ook een miniatuurschets van de trap onder de tafel zijn voor een voorbeeld, zodat u kunt zien hoe uw trap eruit zal zien.
Nadat u met alles tevreden bent, kunt u doorgaan met het ontwerpen van de trap. Hiervoor dient u de volgende gegevens in te vullen:

1.) Selecteer de doorsnede van de site (profielbuis 40×40, 50×50, 60×60, 80×80 en 100×100)
2.) Stel de hoogte en breedte van het boogpeesprofiel in
3.) Stel de dikte van de trede in (op het platform en op de trap zelf)
4.) Plaats de inspringing van de metalen constructies van de trap vanaf de muren (indien nodig)

Om tekeningen te krijgen – klik op “Tekening maken” en selecteer het aanzicht dat je nodig hebt (plattegrond of doorsnede). Wacht een paar seconden totdat het bestand is gedownload.

Het resultaat is een pdf-document met een voltooide tekening van de trap.

Als referentie:
– bij het berekenen volgens de 2e, 3e en 4e methode zijn fouten mogelijk als gevolg van starre binding van afmetingen. In dergelijke gevallen geeft de berekening een rood gemarkeerde hint, die onder de tabel te zien is.

Een reactie achterlaten

Je e-mailadres zal niet getoond worden. Vereiste velden zijn gemarkeerd met *